• お問い合わせ
  • 物件検索
  • 0235-22-3239

鶴岡市で52年の実績、不動産のトータルパートナー

北斗産業株式会社

Property Details 物件詳細

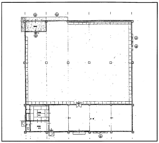
鶴岡市みどり町 貸店舗

  • 鶴岡市みどり町 貸店舗 画像1
賃料
605,000円
敷 金/手数料
1,650,000円 /550,000円+消費税
間取り
専有面積
652.50m²
物件所在地 山形県鶴岡市みどり町 みどり町14番貸店舗
物件No. 3-4 情報登録日 2025/07/29 旧業務スーパー鶴岡店
構 造 鉄骨造 1階建 学 区
設 備 プロパンガス 公営水道 排水下水 駐車場  約30台可能
築年月 平成6年7月  交 通 JR羽越本線 鶴岡駅
入居可能時期 期日指定 令和8年1月 上旬 取引態様 仲介
共益費・管理費
備 考 ※屋根、外壁改修済み 令和6年3月
・借家人賠償責任保険要加入
Loading...
ページトップ
Fudousan Plugin Ver.5.8.0